43
$629,900 Sale
Listed 5 days ago
118 MAIN Street W
· 4
· 1.5
· 8
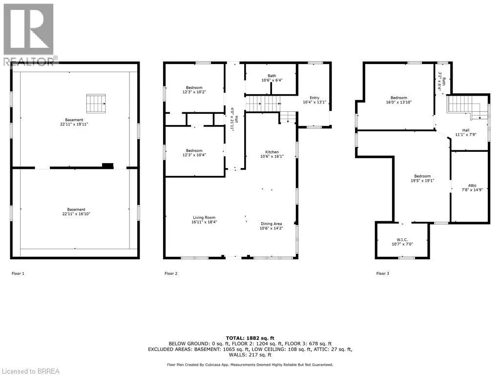
· 1882
Key Facts
Key facts for 118 MAIN Street W
Property Type
House, House
Parking
Garage: Yes, 8 parking
MLS #
40779198
Size
1882 sqft
Basement
Unfinished, Full (Unfinished)
Listed on
-
Lot size
-
Tax
-
Days on Market
-
Year Built
1939
Maintenance Fee
-
Description
Welcome to 118 Main Street West. This spacious four bedroom, two bathroom home is perfect for a family looking for small town charm with ease of access to both the 401 and 403. The naturally well-lit living room and dining room offers a great place for hosting gatherings. With the four bedrooms tuck...ed away down the corridor and up the stairs, it gives excellent separation when you're looking for some peace and quiet. The fully fenced backyard has a view of mature trees around the property, providing privacy as you enjoy the expansive lawn. Armour stones surround the large, beautifully paved patio that was installed with a major backyard upgrade in 2023. The detached garage is equipped with electricity and measures almost 600sqft, perfect for a workshop and a great place to park your car if the 6-car driveway isn't enough. The water services are municipal, no need to worry about a septic or well. The kitchen was updated in 2017, the appliances in 2020, furnace and A/C in 2019. (id:10452)
Similar Properties (No results)
Room Types
2pc Bathroom
-
Dimensions 6'4'' x 3'2''
20.06 sqft
4pc Bathroom
-
Dimensions 10'6'' x 6'4''
66.5 sqft
Bedroom
-
Dimensions 10'2'' x 12'3''
124.54 sqft
Listing courtesy of: Royal LePage Brant Realty
This REALTOR.ca listing content is owned and licensed by REALTOR® members of The Canadian Real Estate Association.